$285,000
 $1,530 est/mo Sourced by Back At You

2210 Lasso Dr,Round Rock, TX 78681

Round Rock, TX 78681

Share:

Description

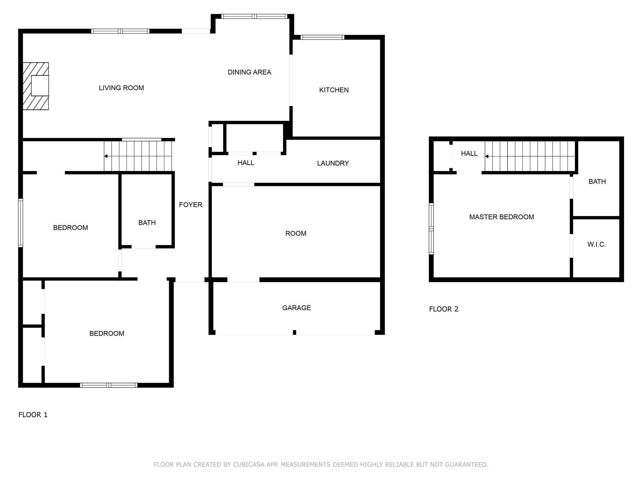
Come check out this freshly painted gem with an ideal blend of comfort and functionality! This home features a spacious open yet split floor plan, with tile flooring throughout the downstairs and cozy carpet leading upstairs to your private master suite. The kitchen boasts granite countertops, custom cabinetry, and a functional layout perfect for entertaining. There is an insulated2-car garage. Additional highlights include: A roof that's only 2 years old. Siding was replaced just 5 years ago. A large backyard patio, perfect for relaxing or entertaining. Two storage sheds for added convenience. Located just minutes from I-35 and SH-45 for easy commuting, and close to top destinations like The Domain, Round Rock Outlets, Austin Aquarium, St. David’s Medical Center, Dell Diamond, and Kalahari Indoor Waterpark. You'll also enjoy proximity to major employers like Dell, Samsung, and other key tech hubs. Don’t miss the opportunity to own this move-in-ready home in a prime location!

Details

MLS #2007389
Listing TypeFor Sale
StyleHouse
Sub-TypeResale
StatusActive Under Contract
Year1984
Days On Site200
Listing Provided ByAll City Real Estate Ltd. Co | Vanessa Thomas

Features

Bed(s)3
Bath(s) 2 Total
SQ Feet1,328
Garage2
Story(s)2
Acreage0.14
Water FrontYes
Property ViewNone

Interior

Interior FeaturesCeiling Fan(s), Ceiling-High, Granite Counters, Stone Counters, Eat-in Kitchen, Open Floorplan, Pantry, Recessed Lighting, Storage, Walk-In Closet(s)
CoolingCentral Air
HeatingCentral, Natural Gas
AppliancesDishwasher, Microwave, Oven
Fireplace FeaturesGas, Living Room, Masonry
Fireplaces Total1
Window FeaturesDouble Pane Windows
FlooringCarpet, Concrete, Tile, Vinyl

Exterior

Exterior FeaturesLighting, Private Yard
RoofComposition
Foundation DetailsSlab
Lot FeaturesTrees-Medium (20 Ft - 40 Ft)
Patio And Porch FeaturesDeck
FencingWood
Construction MaterialsBrick, Vinyl Siding

Parking

Parking FeaturesAttached, Converted Garage, Driveway
Garage Spaces2

Utilities

UtilitiesElectricity Available, Natural Gas Available
SewerPublic Sewer

Other

List AorAustin Board Of Realtors

Taxes

Property5174

Area Information

StateTX
CountyWilliamson
CityRound Rock
Zip Code78681
AreaRRW
Community NameChisholm Valley West Sec 4
School DistrictRound Rock ISD
Elementary SchoolBluebonnet
High SchoolRound Rock
Sourced by Back At You

Request a showing

Request a showing

Loading Form

 Listings courtesy of Austin Board of REALTORS® MLS as distributed by MLS GRID.

Based on information submitted to the MLS GRID as of November 8, 2025 at 7:50:57 PM PST All data is obtained from various sources and may not have been verified by broker or MLS GRID. Supplied Open House Information is subject to change without notice. All information should be independently reviewed and verified for accuracy. Properties may or may not be listed by the office/agent presenting the information.

The Digital Millennium Copyright Act of 1998, 17 U.S.C. § 512 (the “DMCA”) provides recourse for copyright owners who believe that material appearing on the Internet infringes their rights under U.S. copyright law. If you believe in good faith that any content or material made available in connection with our website or services infringes your copyright, you (or your agent) may send us a notice requesting that the content or material be removed, or access to it blocked. Notices must be sent in writing by email to DMCAnotice@MLSGrid.com.

“The DMCA requires that your notice of alleged copyright infringement include the following information: (1) description of the copyrighted work that is the subject of claimed infringement; (2) description of the alleged infringing content and information sufficient to permit us to locate the content; (3) contact information for you, including your address, telephone number and email address; (4) a statement by you that you have a good faith belief that the content in the manner complained of is not authorized by the copyright owner, or its agent, or by the operation of any law; (5) a statement by you, signed under penalty of perjury, that the information in the notification is accurate and that you have the authority to enforce the copyrights that are claimed to be infringed; and (6) a physical or electronic signature of the copyright owner or a person authorized to act on the copyright owner’s behalf. Failure to include all of the above information may result in the delay of the processing of your complaint.

Contact

Learn More About This Property

StateTX
CountyWilliamson
CityRound Rock
Zip Code78681
AreaRRW
Community NameChisholm Valley West Sec 4
School DistrictRound Rock ISD
Elementary SchoolBluebonnet
High SchoolRound Rock
Sourced by Back At You
Nearby Listings (Within 1/10 mile)
Price: $213K - $356K
sqft: 996 - 1,500
Nearby Listings Property ImageNearby Listings Details
2210 Lasso Drive Property Photo 1
$285,000
2210 Lasso Drive
Round Rock, TX 78681
Listing Updated: November 6, 2025 at 3:24:36 PM PST